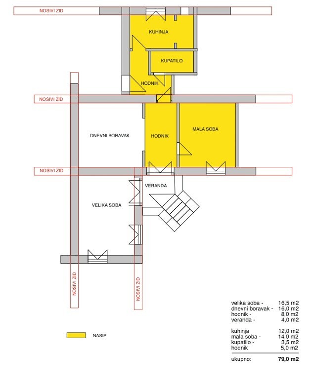
Prekrasan dvosoban komforan građanski stan površine 79 m2, smješten u prizemlju stambene zgrade na predjelu Bol, mirna lokacija, sa izlazom u veliki zajednički vrt, orijentacije jugoistok-sjeverozapad, koji se sastoji od dvije sobe, kuhinje s blagovaonicom, hodnika, kupaonice, dnevnog boravka i verande, stanu pripada i ostava u podrumu zgrade površine 9 m2 (3 x 3 m), potrebna adaptacija.
